發表時間: 2023-02-11 18:10:00
作者: 化工活動家
瀏覽: 8695
關鍵詞 | 煉化企業 塔設備 內部結構
一、塔設備概況
塔設備是石油化工、化學工業、石油工業等生產中最重要的設備之一。它可使氣(汽)液或液液相之間進行充分接觸,達到相際傳熱及傳質的目的。在塔設備中能進行的單元操作有:精餾、吸收、解吸,氣體的增濕及冷卻等。
塔設備的分類
塔設備的種類很多,為了便于比較和選型,必須對塔設備進行分類,常見的分類方法有:
① 按操作壓力分有加壓塔、常壓塔及減壓塔;
② 按單元操作分有精餾塔、吸收塔、解吸塔、淬取塔、反應塔、干燥塔等;
③ 按內件結構分有板式塔、填料塔。
二、塔設備的主要構件及作用

由上圖可見,無論是板式塔還是填料塔,除了各種內件之外,均由塔體、支座、人孔或手孔、除沫器、接管、吊柱及扶梯、操作平臺等組成。
a.塔體 塔體即塔設備的外殼,常見的塔體由等直徑、等厚度的圓筒及上下封頭組成。塔設備通常安裝在室外,因而塔體除了承受一定的操作壓力(內壓或外壓)、溫度外,還要考慮風載荷、地震載荷、偏心載荷。此外還要滿足在試壓、運輸及吊裝時的強度、剛度及穩定性要求
b.支座 塔體支座是塔體與基礎的連接結構。因為塔設備較高、重量較大,為保證其足夠的強度及剛度,通常采用裙式支座。
c.人孔及手孔 為安裝、檢修、檢查等需要,往往在塔體上設置人孔或手孔。不同的塔設備,人孔或手孔的結構及位置等要求不同。
d.接管 用于連接工藝管線,使塔設備與其他相關設備相連接。按其用途可分為進液管、出液管、回流管、進氣出氣管、側線抽出管、取樣管、儀表接管、液位計接管等。
e.除沫器 用于捕集夾帶在氣流中的液滴。除沫器工作性能的好壞對除沫效率、分離效果都具有較大的影響。
f.吊柱 安裝于塔頂,主要用于安裝、檢修時吊運塔內件。
三、塔設備的一般類型(按內件結構分)
板 式 塔
A 、常用板式塔的類型
1、泡罩塔
泡罩塔是工業應用最早的板式塔,而且在相當長的一段時期內是板式塔中較為流行的一種塔型。泡罩塔盤的結構主要由泡罩、升氣管、溢流堰、降液管及塔板等部分組成,如下圖所示。

優點:操作彈性大,因而在負荷波動范圍較大時,仍能保持塔的穩定操作及較高的分離效率;氣液比的范圍大,不易堵塞等。
缺點:結構復雜、造價高、氣相壓降大、以及安裝維修麻煩等。
目前,只是在某些情況如生產能力變化大,操作穩定性要求高,要求有相當穩定的分離能力等要求時,可考慮使用泡罩塔。
2、浮閥塔
浮閥塔板的結構特點是在塔板上開有若干個閥孔,每個閥孔裝有一個可上下浮動的閥片,閥片本身連有幾個閥腿,插入閥孔后將閥腿底腳撥轉90°,以限制閥片升起的最大高度,并防止閥片被氣體吹走。閥片周邊沖出幾個略向下彎的定距片,當氣速很低時,由于定距片的作用,閥片與塔板呈點接觸而坐落在閥孔上,在一定程度上可防止閥片與板面的粘結。浮閥的類型很多,國內常用的F1型、V-4型及T型等 。
優點:
生產能力大;
操作彈性大;
塔板效率較高,;
塔板結構及安裝較泡罩簡單,重量較輕 。
缺點:
在氣速較低時,仍有塔板漏液,故低氣速時塔板效率有所下降;
浮閥閥片有卡死和吹脫的可能,這會導致操作運轉及檢修的困難;
塔板壓力降較大,妨礙了它在高氣相負荷及真空塔中的應用。
3、篩板塔
篩板塔也是應用歷史較久的塔型之一,與泡罩塔相比,篩板塔結構簡單,篩板塔結構及氣液接觸狀況如下圖所示。篩板塔塔盤分為篩孔區、無孔區、溢流堰及降液管等部分。


優點:
結構簡單,制造和維修方便,相同條件下生產能力高于浮閥塔;
塔板壓力降較低,適用于真空蒸餾;
塔板效率較高,但稍低于浮閥塔;
具有較高的操作彈性,但稍低于泡罩塔。
缺點:小孔徑篩板易堵塞,不適于處理臟的、粘性大的和帶固體粒子的料液。
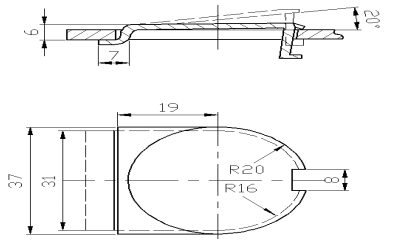
4、舌形塔及浮動舌形塔
(1)舌型塔盤產生的原因
一般情況下,塔盤上氣流垂直向上噴射(如篩板塔),這樣往往造成較大的霧沫夾帶,如果使氣流在塔盤上沿水平方向或傾斜方向噴射,則可以減輕夾帶,同時通過調節傾斜角度還可以改變液流方向,減小液面梯度和液體返混。
(2)舌形塔
舌型塔應用較早的一種斜噴型塔。氣體通道為在塔盤上沖出的以一定方式排列的舌片。舌片開啟一定的角度,舌孔方向與液流方向一致,如下圖[a]所示。

舌形塔結構簡單,安裝檢修方便,但這種塔的負荷彈性較小,塔板效率較低,因而使用受到一定限制。
舌孔有兩種,三面切口[上圖(b)]及拱形切口[上圖(c)]。通常采用三面切口的舌孔。舌片的大小有25mm和50mm兩種,一般采用50mm[如上圖(d)],舌片的張角常用20°
(3)浮動舌形塔
浮動舌形塔是20世紀60年代研制的一種定向噴射型塔板。它的處理能力大,壓降小,舌片可以浮動。因此,塔盤的霧沫夾帶及漏液均較小,操作彈性顯著增加,板效率也較高,但其舌片容易損壞。
浮動舌片的結構見下圖 ,其一端可以浮動,最大張角約20°。舌片厚度一般1.5mm,質量約為20g。

5、穿流式柵板塔
穿流式柵板塔(如下圖)屬于無溢流堰裝置的板式塔,在工業上也得到廣泛的應用。根據塔盤上所開的柵縫或篩孔,分別稱為穿流式柵板塔或穿流式篩板塔。這種塔沒有降液管,氣液兩相同時相向通過柵縫或篩孔。操作時蒸氣通過孔縫上升進入液層,形成泡沫;與蒸氣接觸后的液體不斷地通過孔縫流下。

優點 :
由于沒有降液管,所以結構簡單,加工容易、安裝維修方便,投資少;
因節省了降液管所占的塔截面(一般約為塔盤截面的15%~30%),允許通過更多的蒸氣量,因此生產能力比泡罩塔大20%~100%;
因為塔盤上開孔率大,柵縫或篩孔處的壓力降較小,比泡罩塔低40%~80%,可用于真空蒸餾。
其缺點是:
塔板效率比較低,比一般板式塔低30%~60%,但因這種塔盤的開孔率大,氣速低,形成的泡沫層高度較低,霧沫夾帶量小,所以可以降低塔板的間距,在同樣分離條件下,塔總高與泡罩塔基本相同;
操作彈性較小,能保持較好的分離效率時,塔板負荷的上下限之比約為2.5~3.0。
6、導向篩板塔
導向篩板塔盤的結構如下圖所示。

它是在普通篩板塔盤上進行了兩項改進,其一是在篩板上開設了一定數量與液流方向一致的導向孔;其二是在液體進口區設置了鼓泡促進裝置。
利用導向孔噴出的氣流推動液體,既可減少液面落差,又可通過適當安排的導向孔來改善液流分布的狀況,減少液體返混,從而提高塔板效率,并且導向孔氣流與篩孔氣流合成了拋物線型的氣流,可減少霧沫夾帶。
鼓泡促進裝置使塔盤進口區的液層變薄,可避免漏液,因而易于鼓泡,從而使整個鼓泡區內氣體分布均勻,故可增大處理能力和減少塔板壓力降。
總結:
板式塔的比較:各種板式塔的比較是一個十分復雜的問題。但就生產能力、塔板效率、操作彈性、壓力降及造價等方面來看,浮閥塔在蒸氣負荷、操作彈性、塔板效率方面與泡罩塔相比都具有明顯優勢,因而目前獲得了廣泛應用。篩板塔的壓降小、造價低、生產能力大,除操作彈性較小外,其余均接近浮閥塔,故應用也較廣。柵板塔操作范圍較窄,塔板效率隨負荷變化較大,應用受到一定限制。
B 、塔盤結構
板式塔的塔盤分為溢流式和穿流式兩類,二者之間的區別就在于溢流式塔盤有降液管,而流式塔盤上的氣液兩相同時通過塔盤上的孔道流動, 考慮到溢流式塔盤是煉油廠主要使用形式,今天主要介紹溢流式塔盤結構。
溢流式塔盤由氣液接觸元件、塔板、降液管及受液盤、溢流堰等構成。
1、塔盤的分類
塔盤按結構特點可分為整塊式塔盤和分塊式塔盤。當塔徑DN≤700mm時,采用整塊式塔盤;塔徑DN≥800mm時宜采用分塊式塔盤。
(1)整塊式塔盤
整塊式塔盤根據組裝方式不同可分為定距管式及重疊式兩類。采用整塊式塔盤時,塔體由若干個塔節組成,每個塔節中裝有一定數量的塔盤,塔節之間采用法蘭連接。
(2)分塊式塔盤
直徑較大的板式塔,為便于制造、安裝、檢修,可將塔盤板分成數塊,通過人孔送入塔內,裝在焊于塔體內壁的塔盤支承件上。分塊式塔盤的塔體,通常為焊制整體圓筒,不分塔節。
2、降液管
作用:使夾帶氣泡的液流進入降液管后具有足夠的分離空間,能將氣泡分離出來,從而僅有清液流往下層塔盤。
降液管的結構型式可分為圓形降液管和弓形降液管兩類 。圓形降液管通常用于液體負荷低或塔徑較小的場合,弓型降液管適用于大液量及大直徑的塔 。
3、受液盤
為了保證降液管出口處的液封,在塔盤上設置受液盤,受液盤有平型和凹型兩種(見下圖)。受液盤的型式和性能直接影響到塔的側線取出、降液管的液封和流體流入塔盤的均勻性等。平型受液盤適用于物料容易聚合的場合 ;當液體通過降液管與受液盤的壓力降大于25mm水柱,或使用傾斜式降液管時,應采用凹型受液盤。

4、溢流堰及進口堰
溢流堰有保持塔盤板上一定液層高度和促使液流均勻分布的作用。采用平型受液盤時,為使上層塔板流入的液體能在塔盤上均勻分布,并為了減小入口液流的沖力,常在液體進口處設置進口堰。

填 料 塔
A、 填料
填料是填料塔的核心內件,它為氣-液兩相充分接觸進行傳熱傳質提供了表面積。可分為散裝填料和規整填料兩大類。

1、散裝填料
a 環形填料:拉西環填料、 鮑爾環填料 、階梯環填料
b 鞍形填料:弧鞍填料 、矩鞍填料 、改進矩鞍填料
c 金屬鞍環填料
2、規整填料
根據其結構可分為絲網波紋填料及板波紋填料
B 、填料的支撐裝置
填料的支承裝置安裝在填料層的底部。其作用是防止填料穿過支承裝置而落下;支承操作時填料層的重量;保證足夠的開孔率,使氣液兩相能自由通過。
1、柵板型支承
支承柵板是結構最簡單、最常用的填料支承裝置(如下圖)。

它由相互垂直的柵條組成,放置于焊接在塔壁的支撐圈上。這種支承裝置廣泛用于規整填料塔。用于散裝填料時,柵板上先放置一盤板波紋填料,然后再裝填散裝填料。避免散裝填料直接亂堆在柵板上, 將空隙堵塞從而減少其開孔率。
2、氣液分流型支承
氣液分流型支承屬于高通量低壓降的支承裝置。其特點是為氣體及液體提供了不同的通道,避免了柵板式支承中氣液從同一孔槽中逆流通過。這樣既避免了液體在板上的積聚,又有利于液體的均勻再分配。有駝峰式支承裝置 (上圖)孔管式填料支承裝置 (下圖)


C 、填料塔的液體分布器
液體分布器安裝于填料上部,它將液相加料及回流液均勻地分布到填料的表面上,形成液體的初始分布。在填料塔的操作中,因為液體的初始分布對填料塔的影響最大,所以液體分布器是填料塔最重要的塔內件之一。
液體分布器根據其結構形式,可分為管式、槽式、噴灑式及盤式。
D、 液體收集再分布器
1、填料層分段
當液體沿填料層向下流動時,有流向器壁形成“壁流”的傾向,結果使液體分布不均,降低傳質效率,嚴重時使塔中心的填料不能被潤濕而形成“干錐”。
為了提高塔的傳質效率,填料必須分段,在各段填料之間,安裝液體收集再分布裝置。
其作用有二:
一是收集上一填料層的液體,并使其在下一填料層均勻分布;
二是當塔內氣、液相出現徑向濃度差時,液體收集再分布器將上層填料流下的液體完全收集、混合,然后分布到下層填料,并將上升的氣體均勻分布到上層填料以消除各自的徑向濃度差。
2、典型結構
(1)分配錐
用于小塔,僅能裝在填料層的分段之間,作為壁流收集器使用。改進分配錐可裝在填料層里,收集壁流并進行液體再分布用于直徑大于600mm塔。
(2)多孔盤式再分布器
多孔盤式再分布器(圖3-49)也可作為液體分布器使用。為了與氣體噴射式支承板相配合,故采用長方形升氣管分布盤上的孔數按噴淋點數確定,孔徑為φ3~10mm。升氣管的尺寸應盡可能大,其底部常鋪設金屬網,以防填料吹進升氣管中。
這種裝置用作再分布器時,為了防止上一層填料層來的液體直接流入升氣管,應在升氣管上設帽蓋,帽蓋離升氣管上緣40mm以上。
(3)斜板復合再分布器
斜板復合式再分布器是把支承板、收集器、再分布器結合在一起(下圖),可以減小塔的高度。其導流-集液板同時當作支承板使用,而分布槽既是收集器又是再分布器。匯集于環形槽中的壁流液體,從圓筒上的開孔流入分布糟,與由斜板導入分布槽的液體一起,通過槽底的分布孔重新均布。
當液體負荷較大時,分布槽內的溢流管也參加工作,從而可以適應較大的液體流量變化,同時又增加了液體的噴淋點數,因而能取得良好的分布效果。
E、 填料的壓緊和限位裝置
1、填料壓緊器
填料壓緊器又稱填料壓板。將其自由放置于填料層上部,靠其自身的重量壓緊填料。當填料層移動并下沉時,填料壓板即隨之一起下落,故散裝填料的壓板必須有一定的重量。
常用的填料壓緊板有柵條式和網板式填料壓板,均可制成整體式或分塊結構,視塔徑大小及塔體結構而定。
2、填料限位器
填料限位器又稱床層定位器,用于金屬、塑料制成的散裝填料及所有規整填料。
它的作用是防止高氣速、高壓降或塔的操作出現較大波動時,填料向上移動而造成填料層出現空隙,從而影響塔的傳質效率。
對于金屬及塑料制成的散裝填料,可采用如下圖所示的網板結構作為填料限位器。因為這種填料具有較好的彈性,且不會破碎,故一般不會出現下沉,所以填料限位器需要固定在塔壁上。對于小塔,可用螺釘將網板限位器的外圈頂于塔壁,對于大塔,則用支耳固定。
對于規整填料,因具有比較固定的結構,因此限位器也比較簡單,使用柵條間距為100~500mm的柵板即可。
四、塔設備的載荷種類及對強度的影響
1、壓力載荷
2、質量載荷
3、風載荷
4、地震載荷
5、偏心載荷
1、壓力載荷:內壓塔操作時或水壓試驗時,塔體橫截面均產生軸向拉應力;減壓塔操作時塔體橫截面均產生軸向壓應力。
2、質量載荷:對塔體及裙座的橫截面均產生壓應力,隨橫截面位置下移而增大。
3、風載荷:水平風力使塔產生彎矩,導致塔的橫截面迎風側產生拉應力,被風側產生壓應力。風載荷隨著標高的增高而升高,而截面的彎矩和應力隨截面位置下移而增大。
4、地震載荷:水平地震力對塔破壞最嚴重,對塔體產生彎矩,使塔體橫截面的一側產生拉應力,另一側產生壓應力。
5、偏心載荷:對塔體產生彎矩,使塔體的橫截面一側產生拉應力,另一側產生壓應力。
五、塔設備運行中常見故障及處理方法
在風力作用下產生的誘導振動會使塔設備產生共振,輕者使塔產生嚴重彎曲、傾斜,塔板效率下降,影響塔設備的正常操作,重者使塔設備導致嚴重破壞,造成事故。
處理措施:
(1)采用擾流裝置
合理地布置塔體上的管道、平臺、扶梯和其他的連接件可以消除或破壞卡曼旋渦的形成。在沿塔體周圍焊接一些螺旋型板可以消除旋渦的形成或改變旋渦脫落的方式,進而達到消除過大振動的目的。此方法在某些裝置上已成功應用。螺旋板焊接在塔頂部1/3塔高的范圍內,它的螺距可取為塔徑的5倍,板高可取塔徑的1/10。
(2)增大塔的阻尼
增加塔的阻尼對控制塔的振動起著很大的作用。當阻尼增加時塔的振幅會明顯下降,當阻尼增加到一定數值后,振動會完全消失。塔盤上的液體或塔內的填料都是有效的阻尼物。研究表明,塔盤上的液體可以將振幅減小10%左右。
由于底腳螺栓隨著風向的變化承受著交變應力,容易發生螺帽松動,嚴重時會發生脫落,危及設備本體安全。
處理措施:加強日常檢查,發現異常及時處理。
裙座焊縫位置較低,承受較大的風彎矩,在交變應力作用下,極易發生焊縫開裂,甚至裙座與塔體分離,造成惡性事故。
處理措施:保證制造質量,消除焊接缺陷,加強日常檢查,發現異常及時處理。